• Casa Venta 3 suites El Quijote

Casa

El Quijote, La Barra

  • 3

    Dorms

  • 3

    Baños

  • Sup.

    5000 m2

ID de la propiedad : 563

Hermosa casa en venta en Barrio Privado El Quijote!

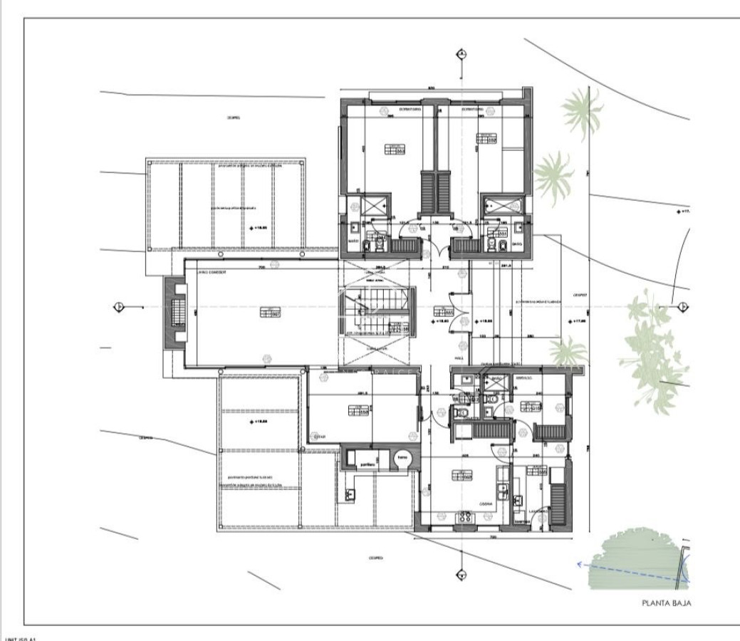
En uno de los puntos más altos del club de campo de El Quijote, encontramos esta sólida residencia, diseñada y construida para poder vivir cómodamente todo el año. La propiedad cuenta con 5000 m2 totales, de los cuales 392 m2 son edificados, la casa de distribuye en 2 plantas.
En planta baja encontramos cálido recibidor, con pasaje a gran living comedor con chimenea. Desde allí se puede acceder también a segunda sala de estar o sala de tv, toilette, moderna cocina definida, con comedor diario, super equipada, lavadero y dependencia de servicio.
Hacia el norte de la vivienda encontramos 2 amplios dormitorios en suite, y bodega de vinos.

En planta alta encontramos una tercer sala de estar, suite principal con vestidor y amplia terraza. En el exterior, cuenta con parrillero, horno de pizza, fogón , juegos para chicos y deck con vista hacia la puesta de sol.
La vivienda dispone de una orientación solar privilegiada y esta construida en materiales de primera calidad: hormigón, doble pared de ladrillo, piedras, aberturas alemanas doble vidrio , excelente carpintería, calefaccionada con losa radiante en toda la casa y aire acondicionado en dormitorios.

Ademas, el club ofrece restaurant, cancha de tenis, cancha de paddle, cabalgatas, playa al arroyo con kayaks, huerta, vigilancia 24 horas, pileta y mas.

Pensada para vivir durante todo el año con el mayor confort y lujo.

Características

  • Barrio  El Quijote
  • Vista  Agradable Entorno
  • Orientacion  Oeste
  • Frente al Mar  No
  • Distancia al Mar  0
  • Terreno m2  5000
  • Edificado m2  392
  • Dormitorios  3
  • Baños  3
  • Suites  3
  • Toilette  Si
  • Cocina  Definida
  • Living  No
  • Comedor  No
  • Living Comedor  Si
  • Comedor Diario  Si
  • Capacidad Personas  6
  • Cantidad Camas  3
  • Dep. Servicio  Si
  • Baño Servicio  Si
  • Lavadero  Si
  • PlayRoom  Si
  • Estufa Leña  Si
  • Cochera  No
  • Garage  No
  • Estacionamiento  Si
  • Cantidad de Plantas  2
  • Propiedad Horizonal  No
  • Piscina  No
  • Parrillero  Si
  • Tipo de Techo  Hormigón

Video

 Casa Venta 3 suites El Quijote

Solicita mas información